PROPIUS INMOBILIARIA pone a la venta en Parres de Llanes este magnífico chalet independiente con parcela cerrada y precioso jardín.
Estancias muy amplias , de gran altura lo que nos da un confort adicional.
Tanto la cocina como su salón de grandes dimensiones , ambos , dan acceso al porche .
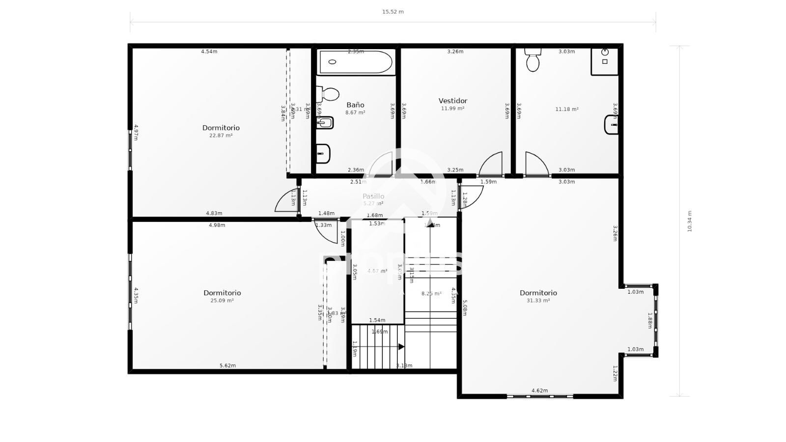
En la planta principal también tenemos un dormitorio ,un baño completo y acceso al garaje por escaleras donde está también una zona de lavadero .
En la planta superior tenemos 3 dormitorios dobles y 2 baños completos.
El dormitorio principal, con unas bonitas vistas y muy luminoso tiene baño en suite y un vestidor .
Desde PROPIUS INMOBILIARIA queremos invitarle a solicitar una visita o cualquier duda que le pueda surgir.
Puede ponerse en contacto con nosotros a través de nuestra página web Propius.es, en nuestros teléfonos o en nuestra oficina en Plaza de la Constitución 1, Llanes.
HABLAMOS..!?!?!!