CASA TOTALMENTE REFORMADA EN PARRES - LLANES. ENTREGA 2026 (ref.1823)

Adosado en venta en Llanes, Asturias

300.000 €
ref. 1823
2025 Año de construcción
103,40 m2 construidos
72,87 m2 útiles
90 m2 parcela
20 m2 terraza
 
 Dormitorios 2
 Baños 2
 Cocina Amueblada
 Calefacción Aerotérmia
 Trastero
 Garajes 1
 Carp. Exterior PVC Rotura Puente Térmico
 Carp. Interior Madera

Estado En proyecto
Tipo de suelo Gres y Tarima
Garaje
Calificación Energética Exento
Luz
Agua
Rejas en ventanas
Zonas verdes

¡Oportunidad en Llanes!

PROPIUS ASTURIAS INMOBILIARIA vende encantadora vivienda en Parres, uno de los pueblos más tranquilos y con mejor ubicación del concejo de Llanes.

La casa será reformada completamente y ya cuenta con proyecto visado y licencia de obra, lo que permite iniciar los trabajos de inmediato, sin esperas ni trámites adicionales.

La vivienda, orientada al sur, disfruta de magnífica luz natural durante todo el día y unas impresionantes vistas a la Sierra del Cuera.

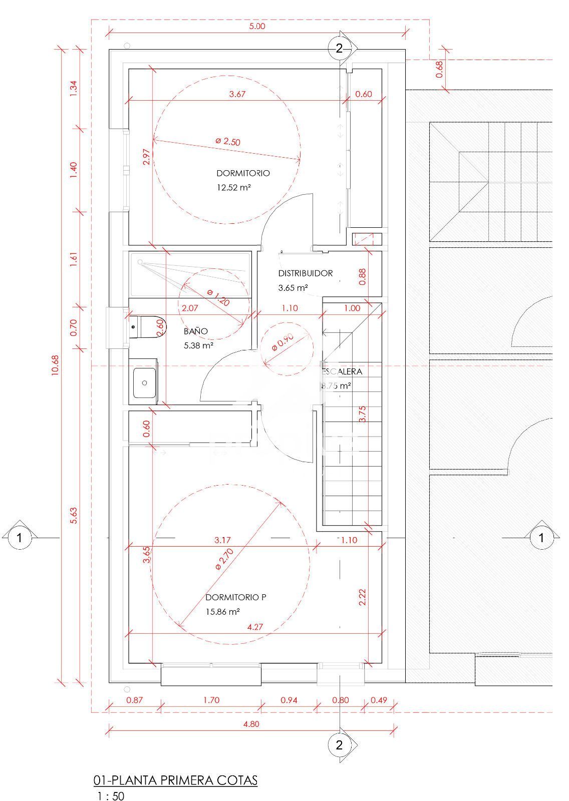
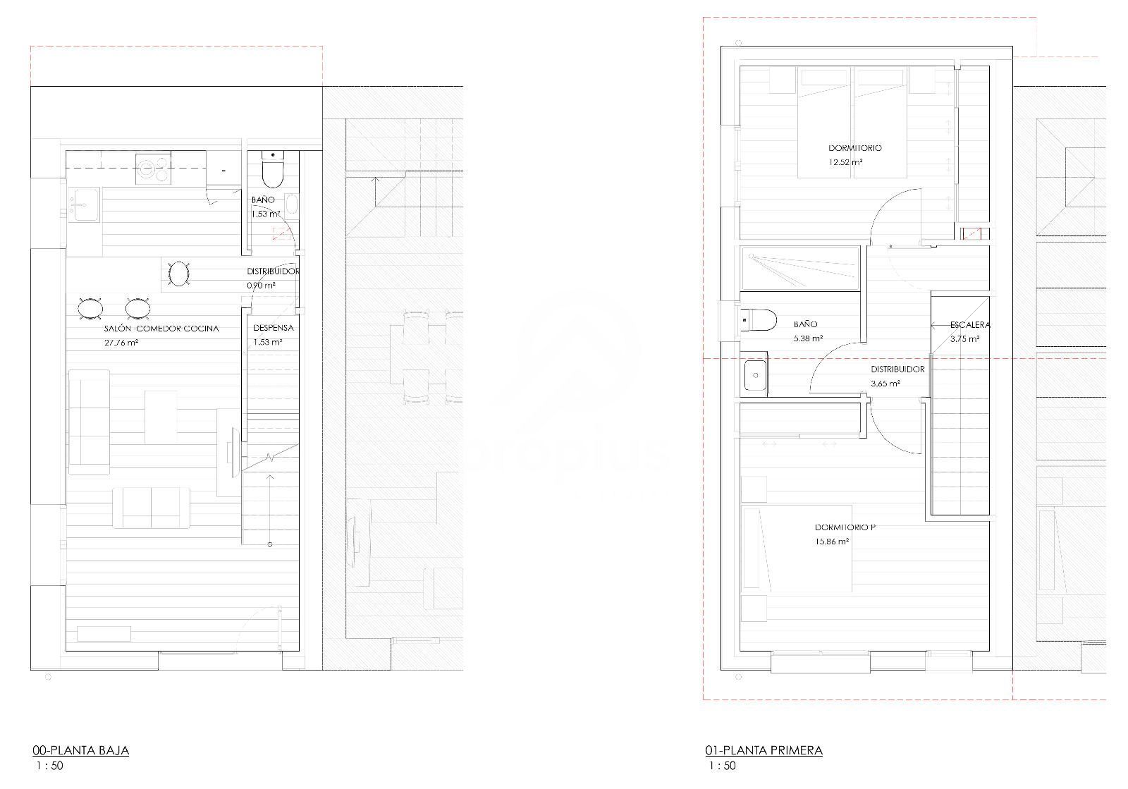
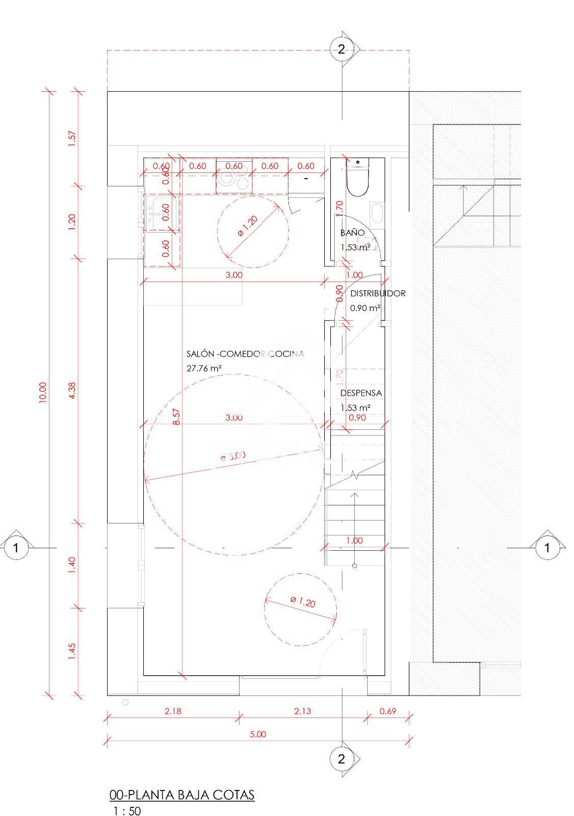
Dispone de una superficie construida total de 103,40 m², distribuidos en:

Planta baja: 50 m²

Primera planta: 53,40 m²

Con una superficie útil total de 72,87 m².

Además, cuenta con una zona exterior privada de aproximadamente 60 m², ideal para disfrutar del aire libre, crear un jardín o una agradable zona de descanso.

Ubicada en un entorno natural privilegiado, a pocos minutos de Llanes y sus playas, esta propiedad combina tranquilidad rural y comodidad moderna, convirtiéndola en una oportunidad perfecta tanto como residencia habitual como para uso vacacional o inversión.

Características destacadas:

Proyecto visado y licencia de obra en vigor

Orientación sur

Jardín / zona exterior privada

Vistas a la Sierra del Cuera

Entorno tranquilo y bien comunicado

Contacta con PROPIUS ASTURIAS INMOBILIARIA en nuestros teléfonos, en propius.es o en nuestra oficina en Plaza de La Constitución, 1, de Llanes para más información o concertar una visita.

La dirección del inmueble es aproximada.

Si desea más información sobre esta propiedad, por favor, rellene el cuestionario: